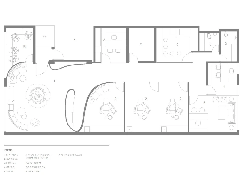
The Smile Designers clinic aims to break away from the typical sterile, rectangular designs often associated with medical spaces, creating a more welcoming and unconventional environment. The concept focuses on blending form and function to design a space that feels comfortable and playful while maintaining its purpose as a healthcare facility. Curved walls, flowing spaces, and the use of natural elements shape the clinic’s unique aesthetic. A key feature of the design is the stretch ceiling, which resembles a large skylight, bringing natural light into the space and filling it with an airy ambiance. This ceiling element is likened to a moon crater by the clients, adding a touch of whimsy. Minimal materials were chosen to keep the design elegant and functional, with sleek duco and veneer finishes on the










